Empresa alvo de operação do MPCE faturou mais de R$ 211 mi em 05 anos nas prefeituras do CE
Somente em 2025, o faturamento ultrapassa R$ 45 milhões

(Foto: reprodução/vídeo)
22/10/2025 18:21
Uma das empresas alvo da operação deflagrada nesta quarta-feira (22) pelo Ministério Público do Estado do Ceará (MPCE), por meio da Procuradoria dos Crimes contra a Administração Pública (Procap), em parceria com a Polícia Civil do Ceará (PCCE), movimentou mais de R$ 211 milhões nos últimos cinco anos em contratos de limpeza pública com prefeituras cearenses. Somente em 2025, o faturamento ultrapassa R$ 45 milhões, distribuídos em 12 municípios do Estado.
Siga o canal do CN7 no WhatsApp
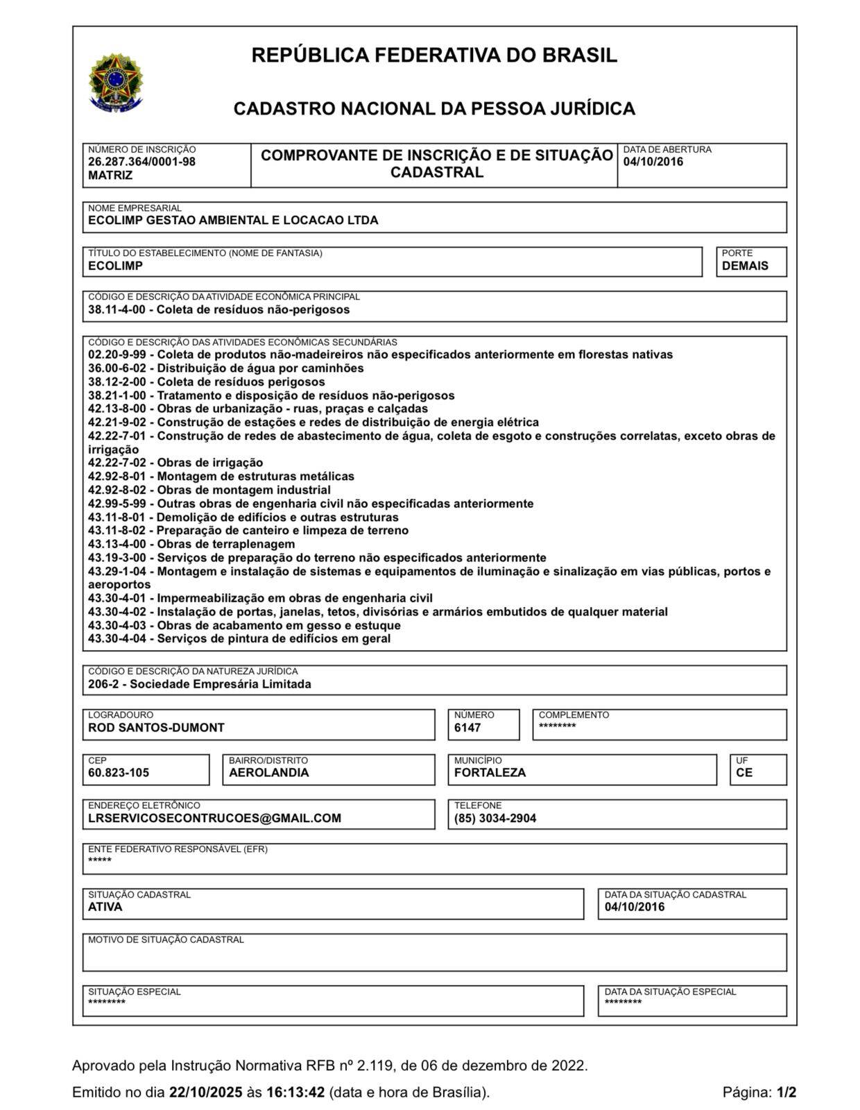
A empresa, originalmente registrada como LR Serviços e Construções, de propriedade de Lucas Rodrigues, apontado como operador de um suposto esquema, passou a utilizar o nome Ecolimp Gestão Ambiental. A sede funciona no bairro Aerolândia, em Fortaleza.
Siga o canal do CN7 no Telegram
De acordo com informações apuradas, o grupo investigado é suspeito de integrar uma rede de contratos direcionados e sobrepreço em serviços de coleta de lixo. Em Beberibe, por exemplo, a LR Construções faturou R$ 8,4 milhões apenas em 2024.
Confira documento:



